Villa Metsa KARUIZAWA ( う゛ぃらめっさ かるいざわ )

宿泊予約サイトの最安値プランを比較

連携ホテル
最安値(2名1室)
¥
最安値を比較する
写真をもっと見る 閉じる

ルート・所要時間を検索

Villa Metsa KARUIZAWAの宿泊プラン

宿泊日/泊数 人数/室数
宿泊予約サイト各社の最安値プランを表示しています。 宿泊プラン一覧を見る
    読み込み中
    郵便番号
    389-0111
    住所
    長野県北佐久郡軽井沢町長倉大日向5595-1
    緯度経度
    36.351656,138.55561
    電話番号
    0267416407
    ジャンル
    ペンション/コテージ
    施設紹介
    北欧風ヴィラの一棟貸切施設。大人数で愉しめるオープンキッチン付でプライベート空間を愉しめます。
    チェックイン/アウト
    チェックイン/15:00から
    チェックアウト/10:00まで
    ※ご宿泊のプランに別途設定がある場合はそちらが優先されます。
    アクセス方法
    しなの鉄道信濃追分駅よりお車にて約10分
    カード
    VISA、JCB、American Express、Diner's Club、UC、Master Card
    駐車場
    有り12台無料先着順
    部屋・館内設備
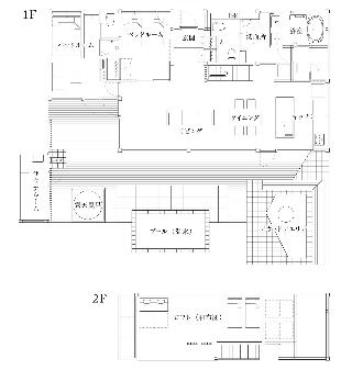
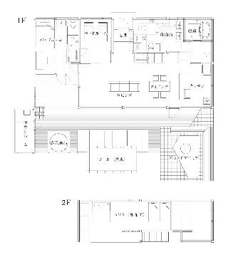
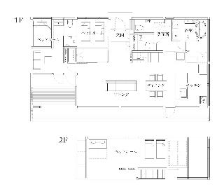
    総客室数:3室

    [部屋設備]
    テレビ、インターネット接続(無線LAN形式)、湯沸かしポット、冷蔵庫、ドライヤー、加湿器(一部)、洗浄機付トイレ、ボディーソープ、シャンプー、コンディショナー、ハミガキセット、カミソリ、ブラシ、タオル、バスタオル、ナイトウェア、スリッパ、電子レンジ(一部・要予約)、金庫
    サービス
    駐車場あり
    その他の情報
    [周辺のレジャー]
    テニス、ゴルフ、スキー、スケート、乗馬、美術館
    提供情報:楽天トラベル

    クチコミ

    • 3.0 2023/07/30
      広々したリビングと庭付ヴィラ
      軽井沢駅、アウトレットから車で20分ほど、中心部から少し離れた場所に位置する、一棟貸しのヴィラ。\3棟あり、一番手前にレセプションがある。\別荘地、住宅地の中にある。\スーパーまで車で10分ほど。\とても広々としたリビングに、寝室が2つ、うち一つには専用のトイレとシャワーブース付き。\ロフトにも布団を敷いて寝られるので、グループやファミリー向き。\メインのバスルームは一箇所、トイレは全部で3つある...

    周辺情報

    ※下記の「最寄り駅/最寄りバス停/最寄り駐車場」をクリックすると周辺の駅/バス停/駐車場の位置を地図上で確認できます

    Villa Metsa KARUIZAWAまでのタクシー料金

    NAVITIME × 位置情報広告
    NAVITIMEプレミアムプラス
    本機能を他の方におすすめしたいですか?
    おすすめ
    したくない
    どちらとも
    いえない
    おすすめ
    したい
    送信
    ご回答ありがとうございました。
    今後も品質の向上に努めてまいります。